Mapa de Ubicación  Mapa de Ubicación       Llamenos  +11 5353 9221
Buscar en Aberlux

Novedades

Junio 2015

Ventanas cada vez más resistentes

Por PAULA BALDO

 Con el desarrollo de perfilería de mayor resistencia y rodamientos y herrajes especiales, las aberturas pueden tener paños cada vez más grandes y con alto gradode hermeticidad. Las líneas de corredizas alzantes, disponibles en aluminio o PVC, permiten fabricar aberturas de gran altura sin que el sobrepeso de las hojas sea un problema.

En los edificios de mediana altura no es preciso hacer retoques a los sistemas estándar. Pero cuando aumenta la cantidad de pisos, las aberturas deben ser perfectamente herméticas a la entrada de agua y viento y solo las líneas premium son compatibles con eso. Algo similar sucede en las viviendas, donde los paños de vidrio extra grandes solo pueden ser resueltos con perfiles de gran inercia y rodamientos robustos.

Antes de la aparición del sistema de corredizas alzantes, la hermeticidad sólo se podía asegurar con las líneas de hojas batientes.

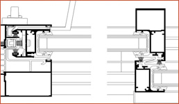
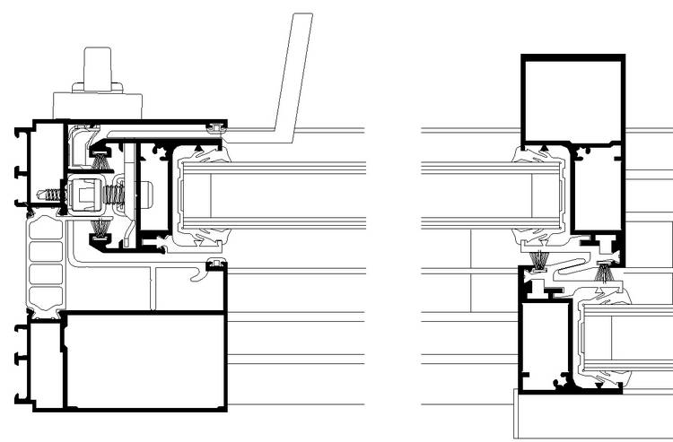
La línea Alzante New-X (Aluar) permite fabricar hojas corredizas de 3,40 metros de ancho por 3 metros de alto, con gran resistencia a las cargas de viento. Mientras que la Alzante Gos-s permite hojas de 2 metros de ancho por 2,50 m de alto. “Es posible realizar diferentes soluciones de apertura en ambas tipologías, con una o más hojas móviles. Además, las hojas admiten doble vidriado hermético (DVH) hasta 32 milímetros, lo que le da al conjunto una alta performance en aislación térmica y acústica ”, enfatiza la arquitecta Gabriela Nadal, jefe de marketing y asesoramiento técnico de Aluar.

Los componentes del mecanismo alzante son fabricados en acero inoxidable para darle resistencia a la corrosión y garantizar un correcto funcionamiento. Además, el mecanismo permite la colocación de hasta cinco puntos de cierre para incrementar la seguridad.

Gabriela Nadal

Jefe de Marketing y Asist. Tecnica Comercial en Aluar

Es posible realizar diferentes soluciones de apertura con una o más hojas móviles. Además, las hojas admiten doble vidriado hermético (DVH) hasta 32 milímetros, lo que le da al conjunto una alta performance en aislación térmica y acústica

Uno de los emprendimientos que utilizó el sistema Alzante New-X es Maui Rosario, una torre de 43 pisos de altura frente al río Paraná, con alto grado de exigencia. “En este caso, se diseñaron parantes reforzados para cumplir con la exigencia de presión de viento del edificio”, señala Nadal. Y aclara que también es ampliamente utilizado en viviendas unifamiliares dado que es el sistema que permite hojas corredizas de mayor tamaño (hasta 3,40 por 3,00 de alto) con un alto grado de hermeticidad.

Es habitual que las empresas extrusoras incorporen a sus catálogos todos los perfiles que van desarrollando para algunos proyectos especiales. De ese modo, la oferta de perfilería se va ampliando. Uno de los primeros rediseños fue para la torre River View, en Puerto Madero. Para este edificio de 35 pisos fue necesario reforzar el umbral con caja de agua de uno de los sistemas de perfilería pesada de Aluar.

En las torres de vivienda, los proyectistas suelen incorporar sectores de muro cortina combinados con carpinterías de hojas corredizas o batientes para los balcones. Es el caso de las torres Maral Explanada, actualmente en obra frente a Playa Chica en Mar del Plata. En el proyecto de César Pelli se están colocando aberturas de la línea Lumeal (Technal): “Es un sistema de alta gama que se destaca por una particularidad estética: el parante de la hoja va oculto dentro del marco”, explica Mariano Cuello, gerente de sistemas para edificios de Technal. En este caso, las puertas balcón tienen 2,46 metros de alto, con parantes laterales de solo 70 mm de ancho incluyendo el marco. Cuello asegura que la alta performance se logra al concebir a las carpinterías como un sistema, incluyendo perfilería, burletes y accesorios.

Mariano Cuello

Gerente de sistemas para edificios de Technal

Es un sistema de alta gama que se destaca por una particularidad estética: el parante de la hoja va oculto dentro del marco


 En las ventanas con hojas corredizas, los parantes centrales son los más solicitados. Mientras que las ventanas de hojas batientes tienen su punto más débil en la unión entre los paños fijos y los de abrir. Esta regla de diseño vale también para la perfilería de PVC. Por ejemplo, en el sistema pesado de Corredizas de Alta Performance (Tecnocom) los perfiles tienen un refuerzo interno de robusto de aluminio en el marco y de acero galvanizado en la hoja. De ese modo, admite ventanas de hasta 6 metros de ancho y 2,50 de alto, con hojas corredizas alzantes. Para asegurar la estanqueidad poseen doble coliza (felpa) en hoja y simple en encuentro (translape), y burlete incorporado en el contravidrio. La serie DC 100 (Tecnocom) es la que permite armar ventanas de mayoy superficie con sistema practicable, oscilobatiente, banderola o proyectante, con un máximo de 2,30 metros de alto.

Burletes

La calidad de los burletes es esencial para garantizar la hermeticidad de la carpintería. En general, se utilizan los de goma (EPDM) bañada en silicona. Esa película facilita la colocación del burlete y alarga su vida útil al protegerlo de los rayos UV. Las empresas proveedoras de carpinterías realizan la ingeniería para desarrollar los burletes y exigen que los fabricantes cumplan con las normas de calidad. Así se aseguran que su producto cumpla un buen papel.

 

Fuente: Clarín http://clar.in/1DPQ7VC

  • Conocimiento, tecnología y calidad, nuestros pilares desde 2003 como carpinteros especializados en aluminio.
  • Descubra nuestra relación precio-beneficio en carpintería de aluminio
  • Contamos con la calidad de la tecnología que proveé Alcemar, líder en el mercado.
  • Para solicitar una entrevista, contáctese con nosotros completando nuestro formulario de contacto.
2015 © ABERLUX - Todos los derechos reservados